Brandschutz
Unsere Leistungsschwerpunkte zum Thema Brandschutz liegen Bislang in den Bereichen
- Brandschutz
- Brandschutzplanung
- Erstellung von Feuerwehrplänen
- Erstellung von Flucht- und Rettungsplänen
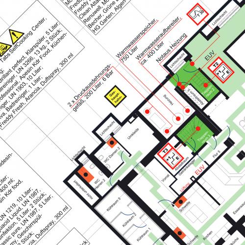
Feuerwehrplan
Erstellung von Feuerwehrplänen gemäß DIN 14095, DIN 14034, DIN EN ISO 7010
Flucht- und Rettungsplan
Erstellung von Flucht- und Rettungsplänen gemäß DIN ISO 23601 und ASR A1.3 (DIN 4844-2, DIN EN ISO 7010, BGV A8, ASR A2.3)
Platzhalter
