Architektur
Unsere Leistungsschwerpunkte liegenbislang in den Bereichen
- Schulbauten
- Kindertagesstätten
- Krankenhausbauten
- Tagespflegeeinrichtungen
- Theaterspielstätten
- Feuerwehrbauten
- Industrie- und Gewerbeplanungen
- Beherbergungsstätten
- Individuelle Wohnungsbauaufgaben
- Brandschutz
- Brandschutzplanung
Ruhrgebiet, 2021 – Heute
Errichtung Din-KonformerFeuerwehrzufahrten und Aufstellungsflächen inklusive Bordsteinabsenkungen
Ruhrgebiet 2018
Visualisierung eines Abschiedsraums in einer Klinik
Bergisches Land, 2018
Planung und Errichtungvon Kranfundamenten
Bergisches Land, 2018
Planung und Errichtungvon Maschienen- undPrüfstandfundamenten
Ennepe-Ruhr-Kreis, 2025
Bauvoranfrage Lagerhalle
Planungsrechtlichen Vorbescheid zur Errichtung einer Lagerhalle
Ennepe-Ruhr-Kreis, 2025
Errichtung einer Balkonanlage als Stahlkonstruktion
Grundriss und Ansicht
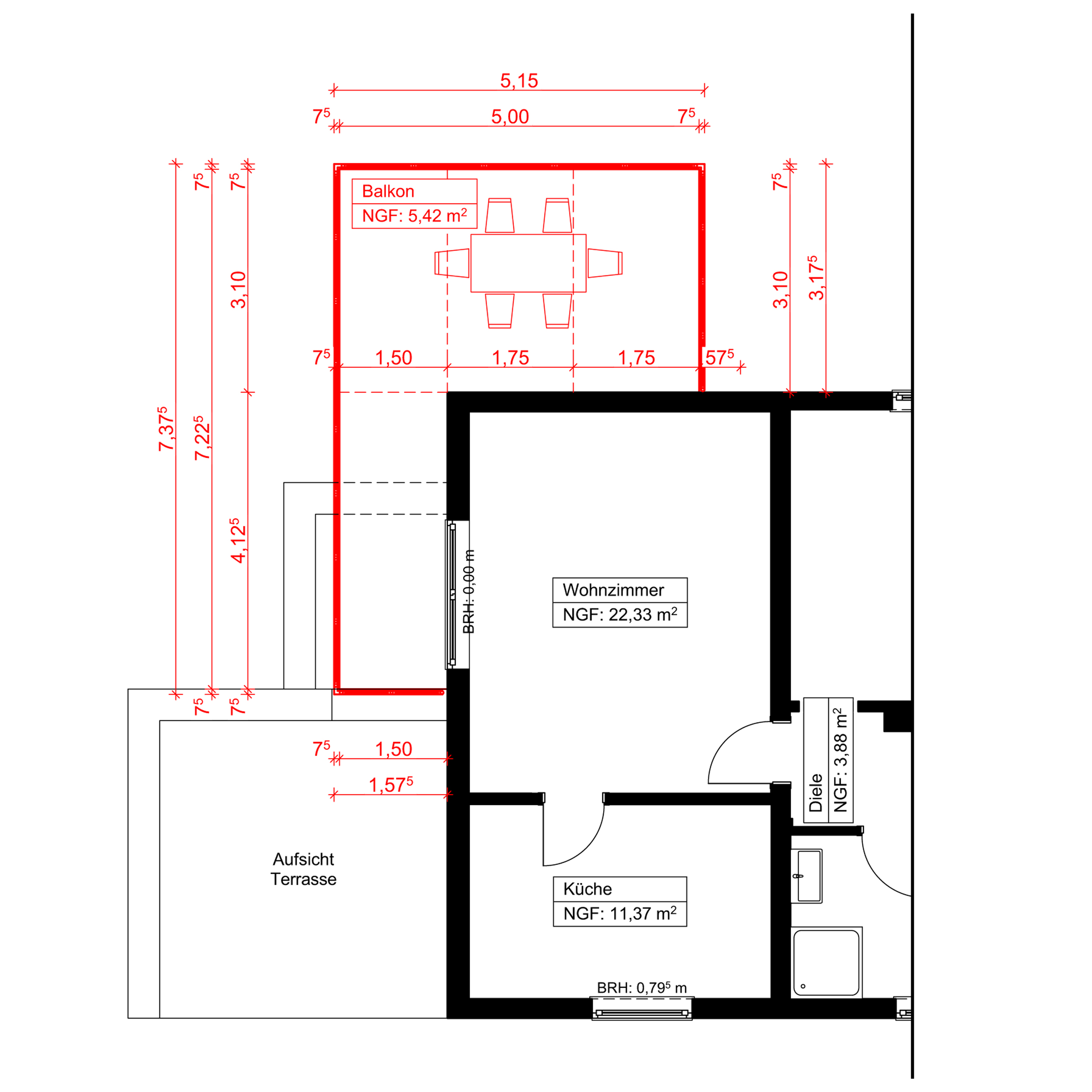
Balkonanlage Grundriss
Das Ist Der Grundriss zur Errichtung einer Balkonanlage
Balkonanlage Ansicht
Das Ist die Vorderansicht zur Errichtung einer Balkonanlage
Ennepe-Ruhr-Kreis, 2025
Planung einer Doppelgarage
Grundriss und Schnitt
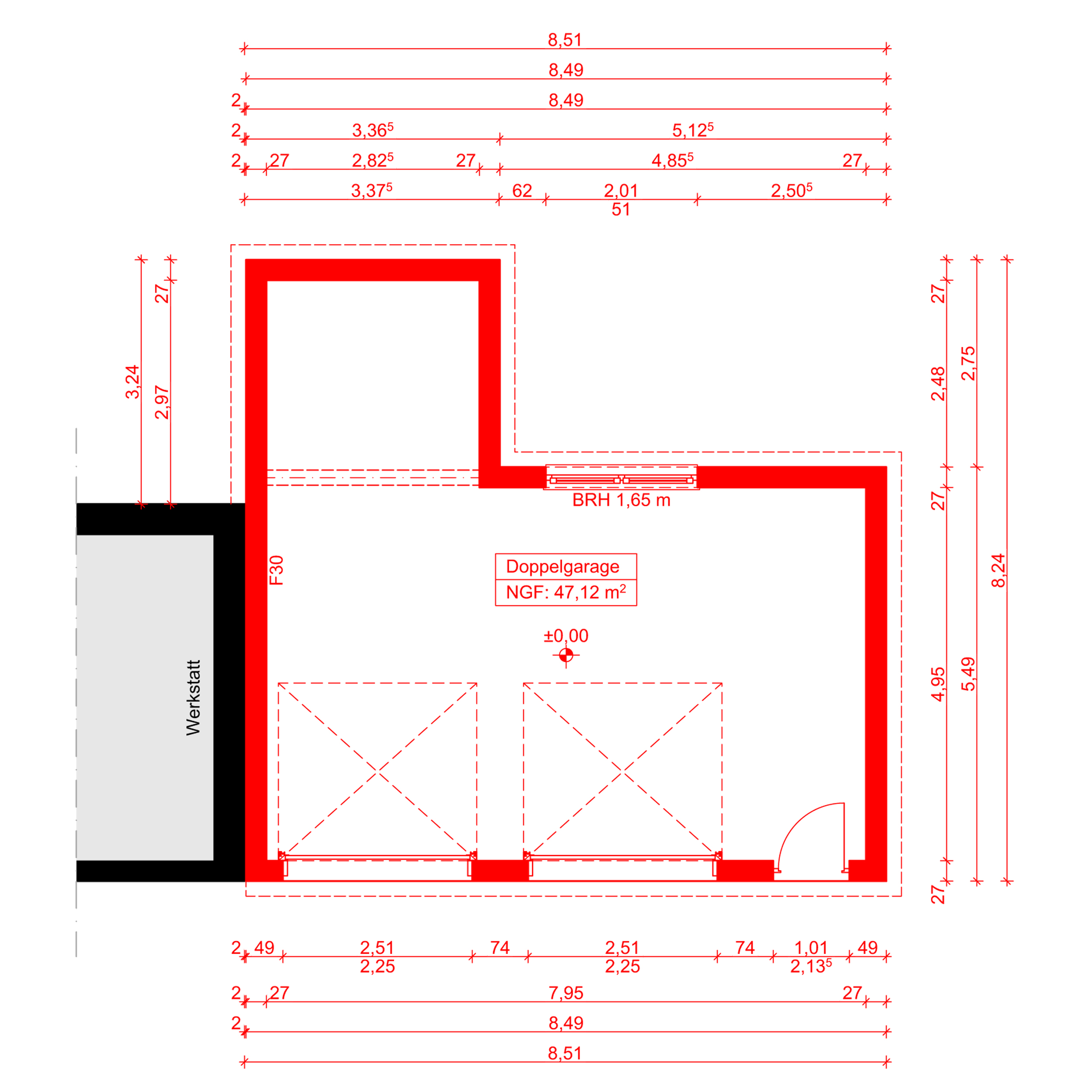
Doppelgarage Grundriss
Das Ist Der Grundriss zur Errichtung einer Doppelgarage
Doppelgarage Schnitt
Das Ist Die Schnittansicht zur Errichtung einer Doppelgarage
Ennepe-Ruhr-Kreis, 2024-2025
Nutzungsänderung einer Werkstatt in ein Einfamilienwohnhaus
sowie die Errichtung eines Carports mit Terrasse
Grundrisse, Schnitt, Ansicht
Wohnen Ansicht
Das Ist Die Schnittansicht zur Veränderung Der Nutzung Einer Wohnung
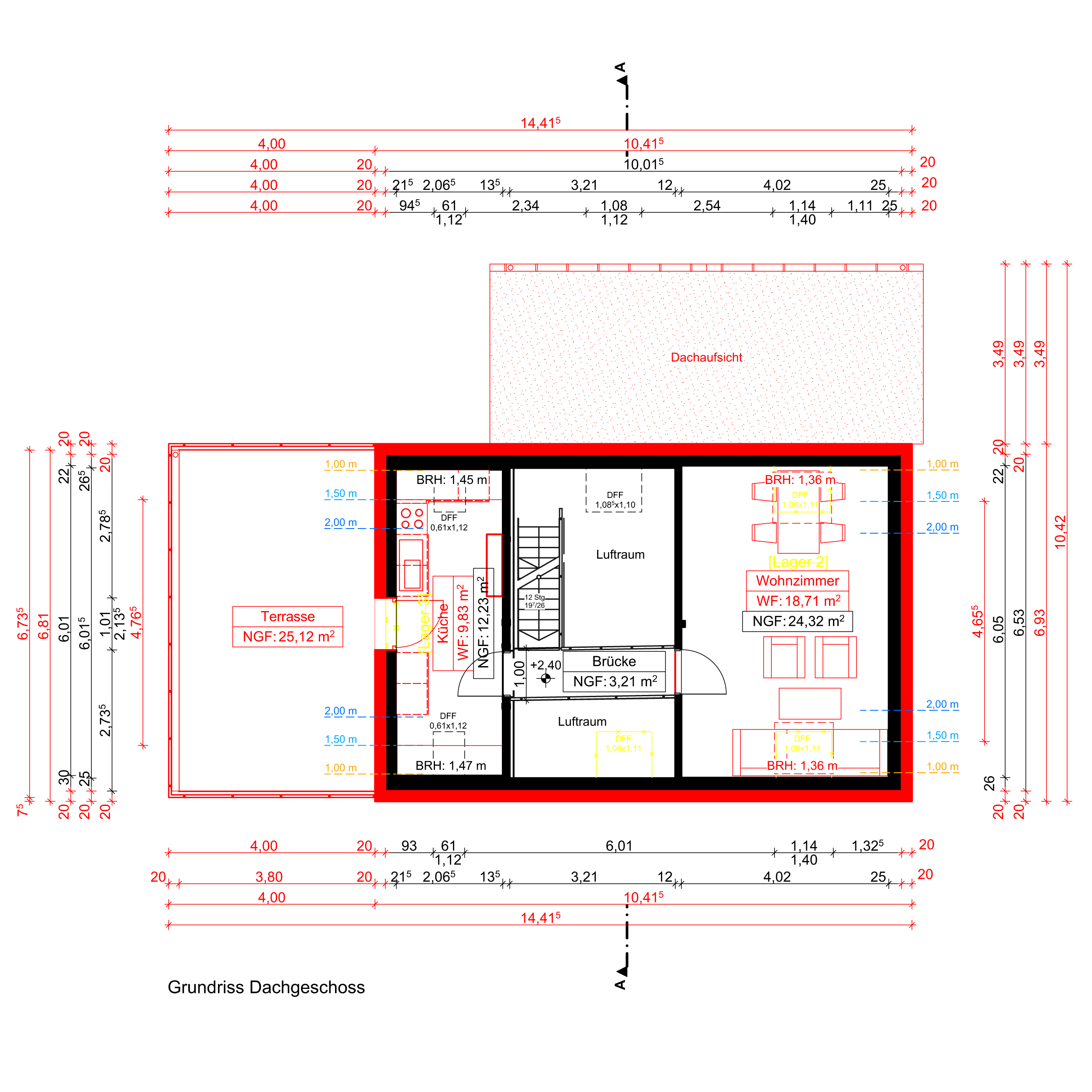
Dachgeschoss
Das Ist der Grundriss Zur Nutzungsänderund Eines Dachgeschosses
Wohnen EG
Das Ist der Grundriss Zur Nutzungsänderund Eines Wohnbereichs Im Erdgeschoss
Wohnen Schnitt
Das Ist Der Querschnitt Zur Nutzungsänderung im Wohnbereich
